AutoCAD là gì?
- Phần mềm Autocad không còn xa lạ với dân trong ngành thiết kế, kỹ thuật, cơ khí, Kiến trúc sư,.. Autocad giống như một phần trong công việc là phần kết nối như bước đệm đầu tiên khi dấn thân vào ngành thiết kế. Phần mềm có nhiệm vụ triển khai chi tiết bản vẽ kỹ thuật , hoàn thiện hồ sơ thiết kế
- Autocad thể hiện các bản vẽ chi tiết 2D, 3D hỗ trợ soạn thảo trong thiết kế kiến trúc – xây dựng, và công cụ đắc lực của các chuyên viên thiết kế trong nhiều ngành khác.
- Đây là phần mềm thiết kế 2D thực hiện các bản vẽ hoàn toàn trên máy tính, phần mềm kỹ thuật được sử dụng phổ biến nhất để thể hiện các chi tiết mô tả và sử dụng để thiết kế nội thất, trang web, kiến trúc, ô tô… các chi tiết được vẽ kích thước kỹ lượng trước khi đi qua công đoạn thiết kế tiếp theo.
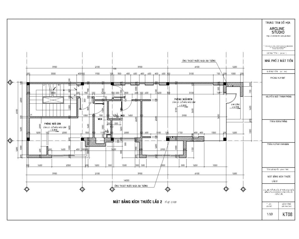
Bản vẽ kết cấu 2D
Kết cấu bản vẽ 2D sẽ được kỹ sư kết cấu trình bày về phần 2D, còn với các KTS và họa viên thì chuyên về phát triển ý tưởng và thiết Nội – Ngoại thất cho tổng thể căn nhà. Thường được thể và bố trí kết cấu Móng, dầm, cột … hay chi tiết kết cấu théo chủ, thép đai…
Mặt bằng kết cấu 2D được thể hiện trên phần mềm Autocad
Một số cách bố trí kết cấu chi tiết bản vẽ kết cấu hợp lý
- Thiết lập các kiểu kích thước cho bản vẽ. Các kiểu kích thước thông dụng: tl100, tl50, tl20, tl25
- Tỷ lệ bản vẽ các mặt bằng, mặt đứng, mặt cắt: TL 100
- Tỷ lệ các chi tiết cấu tạo, mặt cắt dầm, sàn, cột: TL 20
- Tỷ lệ các chi tiết nhỏ: TL 10
Trình bày Bố Cục bản vẽ Autocad 2d
Bố cục bản vẽ là phần yêu cầu để đảm bảo được sự mạch lạc – rõ ràng – chi tiết được thể hiện lên bản vẽ. Nhưng để các bố cục được trình bày cân đối trên tờ giấy đây cũng là một phần được xem là khâu quan trọng nhất trước khi in hồ sơ gửi đến tay Khách hàng.
Vì vậy, Trung tâm Arcline sẽ hướng dẫn bạn một số típ nhỏ để giúp bạn có thể thể hiện bản vẽ một cách hoàn chỉnh nhất và ít sai xót nhất nhé!
- Trình bày bản vẽ dự án xây dựng
- Phần Kiến trúc (chiếm tối đa 5%): ít nhất 2 – 3 bản vẽ trong hồ sơ triển khai chi tiết, gồm các bản vẽ mặt đứng chính, mặt cắt và mặt bằng kiến trúc. Mỗi hình vẽ sẽ bố trí trong một bản vẽ
- Phần Kết cấu chính (75%): tối đa 9 12 bản vẽ, gồm các bản vẽ:
- Mặt bằng bố trí thép sàn tầng điển hình + 2 mặt cắt thép sàn theo 2 phương + bảng thống kê thép sàn
Các bản vẽ khung trục…và các mặt cắt thép trong dầm và cột
Trình bày bố cục kết cấu chi tiết rõ ràng
Các bản vẽ móng: bản vẽ mặt bằng bố trí cọc, chi tiết cấu tạo móng và các mặt cắt thép trong móng, cấu tạo chi tiết cọc…
- Phần Thi công (25%):tối đa 3 4 bản vẽ
- Các bản vẽ tùy thuộc vào nhiệm vụ bạn được phân công
- Nếu bạn chọn Thi công chính thì số lượng bản vẽ Kết cấu và Thi công đổi ngược lại ở trên
- Tổng cộng có tối thiểu 15 bản vẽ và tối đa 20 bản vẽ
Sau khi đã vẽ hình xong ở ngoài, bạn bắt đầu đưa từng hình vào khung bản vẽ và bố cục tỷ lệ, vị trí các hình sao cho hợp lý. Bản vẽ không nên quá trống cũng không nên quá nhiều dày đặc, nên bố trí 85% không gian bản vẽ.
Chi Tiết bản vẽ Autocad 2D
Ghi chi tiết từng kích thước trong bản vẽ triển khai
Chi tiết bản vẽ kỹ thuật thường được nêu chi tiết để thể hiện đúng tất cả các ký hiệu:
- về vật liệu xây dựng, ghi chú thích rõ ràng thành phần cấu tạo và vật liệu và hướng độ dốc. Thể hiện các ký hiệu lót sàn tường bằng cách vật tư như: Gỗ, gạch, bê tông… và ghi chú cấu tạo
- Kích thước chi tiết các bộ phận như trục tường từng trục và chủ yếu như nền sàn và mái chính xác và đầy đủ
- Nêu đầy đủ các chi tiết mặt bằng, mặt đứng, mặt cắt… bằng chi tiết cơ bản để thể hiện nên hình vẽ chi tiết triển khai
Một số lưu ý khi thể hiện bản vẽ triển khai 2D
- Thể hiện các đường nét chi tiết rõ ràng, chính xác
- Bản vẽ chi tiết phải gọn gàng, trình bày đẹp mắt
- Thống nhất các nét có cùng chức năng (chẳng hạn như các nét cắt phải đều nhau…)
- Nét cắt, bằng, đứng thường có kích thước chênh lệch nhau và dễ dàng nhận biết
Khóa học AutoCAD của Trung Tâm Arcline
Vậy, Khóa học Autocad tại Trung tâm Arcline phù hợp với ai ?
- Khóa học phù hợp với các bạn trong ngành/ trái ngành và những bạn có đam mê về lĩnh vực thiết kế này
- Các bạn sinh viên cùng ngành/ trái ngành thiết kế nội thất
- Các bạn chuyên về lĩnh vực Kỹ sư, Giám đôc, giám sát muốn nâng cao khả nâng thiết kế và trao dồi Kinh nghiệm
- Nếu bạn muốn tự tay thiết kế được bàn – tủ, ghế, giường … thì bạn không thể bỏ qua được chương trình học này nhé, đây sẽ là khóa học phù hợp để bạn trao đổi kiến thức
Chương trình học Autocad sẽ được học như thế nào?
- Bạn sẽ được tìm hiểu về phần mềm Autocad là gì? Và ứng dụng Autocad về các lĩnh vực gì?
- Làm Quen với phần mềm Autocad – và Tổng quan về Khóa học được biểu diễn bằng các Mặt đứng, mặt bằng, mặt cắt… Kết cấu điện nước….
- Thực hành và chiến thôi nào anh em!
Nếu bạn đang quan tâm đến Khóa học Autocad 2D triển khai bản vẽ kỹ thuật bạn có thể xem thông tin chi tiết khóa học và chương trình đào tạo tại đây nhé.





